・ 確認申請書の提出(見積り金額の決定後)
・ 以下に実施設計図を一例を表示します。
● 実施設計の作成フローチャート
◆ 戸建住宅の実施設計プロセス
・ 工事の着手
・ 現場には週に2〜3回の監理を行う予定でその都度デジカメにて撮影を行う。
・ 監理終了報告書及び引き渡し書類を作成の上本設計監理業務を終了とする。


(オーナー様の負担で地質の調査をして頂き構造計算を行います。)
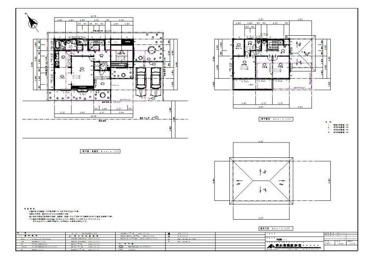
(平面図)
(法規チェツク図)
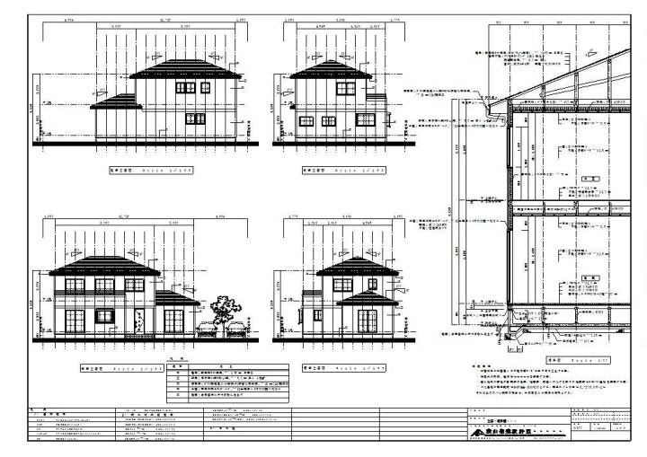
(立面図)
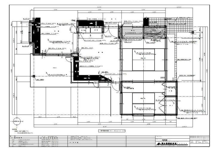
(平面詳細図)
(展開図)
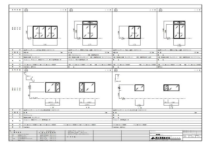
(建具表図)
(仕上表)
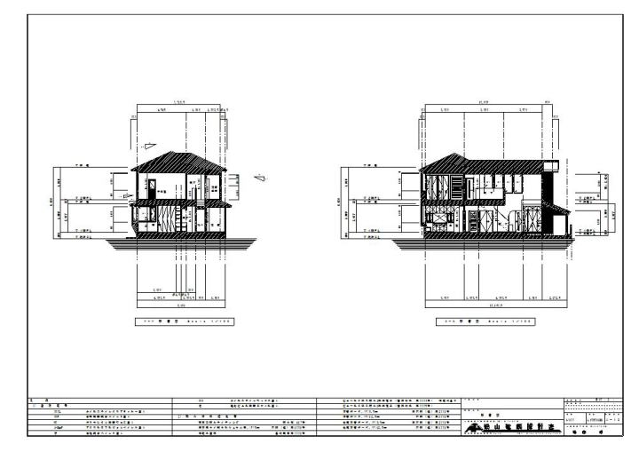
(断面図)
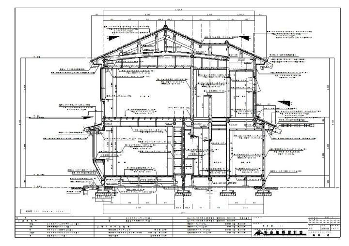
(矩計図)
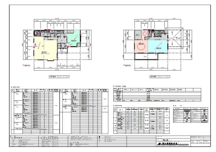
(展開図)
・ 尚、上記画像での平面等は、個人情報の考えより画像解像度を下げております。